Специальные программы для рисования однолинейных схем электроснабжения
Для правильного оформления технической документации нужно изучить требования ГОСТов, но можно использовать специально разработанные компьютерные программы. При использовании специализированных программ, все требования будут учтены в автоматическом режиме.

- «1-2-3 схема» — очень доступная в понимании бесплатная программа. Подходит для студентов и начинающих специалистов;
- «AutoCAD Electrical» — очень популярная программа среди опытных специалистов, понятная и дающая расширенные возможности для разработок электрических схем;
- «Microsoft Visio» — бесплатная программа для обывателей, которые используют программу для составления схемы электроснабжения при строительстве частного дома;
- XL Pro² — бесплатная программа для проектирования низковольтных комплектных устройств (НКУ);
- «Компас-Электрик» — бесплатная программа для инженеров и специалистов энергетических комплексов;
- Rapsodie — еще одна программа для проектирования низковольтных комплектных устройств. Программа позволяет без труда собрать нужный распределительный шкаф по заданным параметрам;
- «Eagle» — программа доступна в бесплатном и платном варианте, в платном пакете доступна более расширенная по техническим параметрам версия;
- «DipTrace» — программное обеспечение для создания электрических схем, чертежей печатных плат для создания электронных изделий.
Для того чтобы грамотно и четко разработать однолинейную схему необходимо строго руководствоваться ГОСТами и стандартами, уметь пользоваться современными программными продуктами и иметь представление об электрических установках, но правильнее всего воспользоваться услугами специалиста.
Описание работы
Если электросхема построена правильно, то и работать она будет исправно. Работает все так. От источника питания идет заряд, который попадает под клеммник в проводник и электромагнитную катушку реле. Через катушку электроток устремляется к контактам. Как только ток попадает в контакты, начинает работать вся сеть, включается диод. Благодаря электродвижущей силе поддерживается первоначальный электроток, и он достигает наибольших значений.
Обратите внимание! Стоит указать, что без электродвижущей самоиндукции поддержание тока в контуре невозможно, поскольку при большом значении амплитуды, радиоэлементы начинают плохо работать. Благодаря этому импульсу, пробиваются полупроводниковые переходы, и выводится аппарат из функционирования
Сегодня диоды уже встраиваются в реле. Это позволяет работать электросхеме правильно.
В целом, в дополнение к теме, как научиться читать электрические принципиальные схемы, стоит отметить, что читать их необходимо с опорой на обучающий материал, в котором указывается информация о том, что значат те или иные условные обозначения. Только после получения полной информации, можно приступать к работе, если производятся соответствующие действия в электропроводке.
Как научиться читать электрическую схему
Любая радиоаппаратура включает в себя отдельные радиодетали, которые спаяны между собой при помощи определенного способа. Все эти элементы отражаются на электрической схеме условными графическими значениями. Чтобы научиться читать документ, необходимо понимать условное обозначение всех проводниковых элементов электроцепи. Каждая деталь имеет свое графическое обозначение и включает в себя условную конструкцию с характерными особенностями.

Проще всего работать с таким элементом как электронный конденсатор с резисторами, динамиками и другим электрооборудованием с автоматизацией. Как правило, их легко узнать без всякой таблицы с условными обозначениями. Учиться на них проще. Сложнее осуществлять работу с полупроводниками, а именно транзисторами, симисторами и микросхемами. К примеру, каждый биполярный транзистор имеет в себе три вывода, а именно, базу, коллектор и эмиттер. По этой причине необходимы условные изображения и уточняющая информация в виде латинских букв. Изучение их может занять много дней, как и обучение их опознания.
Обратите внимание! Кроме букв на каждой схеме есть цифры. Они говорят о нумерации и технических характеристиках
Стоит указать, что самостоятельно научиться читать документ невозможно, и поэтому нужны уроки и обучающие пособия.

Основные правила
В ответ на вопрос, как читать электросхемы, стоит уточнить, что это нужно делать слева направо, от начала до самого конца. В этом заключается основное правило. Следующее правило заключается в расчленении единого чертежа на небольшие картинки или простые цепи. Она состоит из источника электротока, приемника тока, прямого привода, обратного провода и одного контакта аппарата. Поэтому, начиная изучать документ, нужно разбить его на части
Далее обязательно нужно принимать во внимание все детали, с замечаниями, экспликациями, пояснениями и спецификациями. Если в чертеже находятся ссылки, то нужно изучить и их
Обратите внимание! Чертежи, которые отражают момент работу электропитания, электрозащиты, управления и сигнализации, должны быть изучены на количество источников питания, взаимодействие, согласованность совместной работы, оценку последствий вероятных неисправностей, нарушение проводной изоляции, проверку схемы с отсутствием ложных цепей, оценку надежности электрического питания, режим работы оборудования и проверку выполнения мер, которые обеспечивают безопасное проведение работ

Условные обозначения
Согласно нормативным документам, есть стандартные графические условные обозначения в однолинейных и двухлинейных схемах. Далее представлена таблица с подобными символами под названием электрические схемы для начинающих условные обозначения. Стоит указать, что в чертежах используются также цифры и буквы. Подобная маркировка регулируется с помощью нормативных документов, а именно гостов.

Виды однолинейных электрических схем
В зависимости от того, на каком этапе выполнения работ по созданию электрической сети объекта составляется однолинейная схема, зависит её вид и прямое предназначение. На этапе разработки проектной документации составляется расчётная однолинейная схема, служащая основным документом для расчёта параметров системы электроснабжения. Именно этот документ необходим для последующих согласований с органами, выдающими технические условия для подключения объекта строительства к действующим электрическим сетям, каковыми являются электросетевые организации в месте размещения объекта-потребителя электрической энергии.

Расчётная схема квартирного щита загородного дома
На этапе эксплуатации объекта составляются однолинейные исполнительные схемы, на которых отображаются все изменения, вносимые в конфигурацию электрической сети в процессе её использования. Это может быть связано с модернизацией используемого оборудования или его заменой, добавлением новых мощностей или изменением конфигурации магистральных и групповых линий. На крупных объектах, где система электроснабжения подразделяется на несколько уровней, однолинейные схемы составляются по каждой группе потребителей: «объект в целом – цех – участок» и т.д. Изначально делается рисунок, отображающий подстанции (ТП) и конфигурацию сетей их объединяющих, затем схема ТП или ГРЩ (главный распределительный щит) и затем − каждого силового или осветительного щитка, имеющегося на объекте.

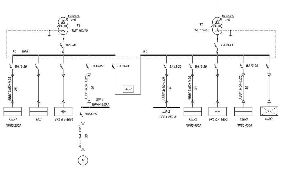
Исполнительная схема 2-трансформаторной подстанции
На основе однолинейных разрабатываются прочие электрические схемы системы электроснабжения: структурные и функциональные, принципиальные и монтажные.
Используемые по ГОСТу обозначения
ГОСТом регулируются следующие виды обозначений:
- поправки и надписи, правила исполнения электросхем, комплектность и виды документов (указаны в ЕСКД (Единая система конструкторской документации 2006-2013 гг.);
- общие требования к выполнению схем, их типы и виды (ГОСТ 2.701-2008).
Документы определяют УГО – условно-графическое обозначение отдельных деталей, линий их взаимосвязи, функциональных групп и устройств. Большинство изображений выполняются с помощью программного обеспечения, которое можно скачать из сети. Можно воспользоваться онлайн-версиями конструкторов, разработанных с учетом требований стандартов. При необходимости допускается использовать не стандартизированные УГО.
Условные графические обозначения.
На чертежах (рядом или внутри УГО, в разрыве или по концам линий взаимосвязи, на свободных полях) располагаются текстовые данные, характер которых определяется назначением принципиальных схем.
Однолинейная схема электроснабжения: что это такое и зачем нужна
Принципиальная электрическая схема
Полное представление о том, как функционирует электротехническое изделие или объект, дает принципиальная электрическая схема. Она включает в себя весь перечень элементов, из которых состоит объект. Данная схема является основой для разработки всех последующих документов и чертежей, необходимых для строительства объекта либо оборудования. На принципиальной схеме отражены чертежи, которые показывают полные электромагнитные и электрические связи элементов, а также характеристики всех компонентов объекта. Составление принципиальной схемы производится двумя способами: совмещенным и разнесенным.
При разнесенном способе используют схемы, которые содержат множество контакторов, реле и различных контактов. Для создания таких схем элементам присваивают значения последовательно. А вот отдельные цепи располагают параллельно. Все части, которых входят в состав элементов и устройств или отдельные элементы на схеме прорисовывают раздельно друг от друга, чтобы схема выглядела более наглядно.
При совмещенном способе на схеме электроснабжения отображают все части элементов или устройств вблизи друг от друга.
На свободных полях схем, которые выполнены разнесенным способом, допустимо размещать графические обозначения устройств, выполненные совмещенным способом.
Если объект содержит такие элементы, которые используются частично, то эти элементы должны быть изображены на схеме полностью, при этом следует указать, какие части используются целиком, а какие нет. Те, что используются полностью, должны быть отображены на схеме длиннее, а части неиспользованных элементов изображаются короче.
Что подразумевают под однолинейной схемой
Однолинейная схема отличается от принципиальной схемы тем, что на однолинейной все электрические соединения объекта выполнены в упрощенном виде и обозначены одной линией независимо от числа фаз. Этот способ упрощения используется не только для отображения силовых линий, но и для обозначения различного вида кабеля, число проводов в котором может быть более трех.
Виды однолинейных схем: расчетная и исполнительная
Расчетную схему используют на этапе проектирования и подбора электрооборудования. Она служит основой для других схем, необходимых для строительства объекта и ввода его в эксплуатацию. При составлении расчетной схемы учитывают все необходимые параметры, которые будут обеспечивать объекту полную пожарную безопасность.
На готовом объекте исполнительную схему применяют, когда электрические сети подлежат модернизации. В данном случае чертеж разрабатывается на основании действующих установок. Перед тем, как составить однолинейную схему электроснабжения в обязательном порядке проводят всестороннее обследование объекта. Модернизированную схему разрабатывают с учетом исправления всех дефектов, которые удалось выявить в ходе работ.
Программы для оформления исполнительной документации
Составление электрической схемы в Visio
Для составления качественной документации, соответствующей госстандартам, нет необходимости чертить схему от руки на бумаге. Ее можно нарисовать онлайн, воспользовавшись заточенным под эту цель программным обеспечением. Примеры таких приложений:
- MS Visio – широко используется для разного рода офисных работ и подойдет для подготовки чертежа электросхемы жилого дома;
- Компас-Электрик – простая программа, распространяемая свободно, применяемая сотрудниками служб электроснабжения;
- 1-2-3-Схема – вариант, часто выбираемый учащимися и малоопытными специалистами;
- AutoCAD Electrician – популярная программа в среде профессиональных разработчиков.
Выбор подходящей программы делается с учетом масштабности и сложности сети. Например, для частного дома нет необходимости применять сложное профессиональное ПО.